Hawk House, Crayfields Park, New Mill Road, Orpington Kent BR5 3QD

< Back to results

STATUS

To Let

DESCRIPTION

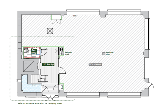
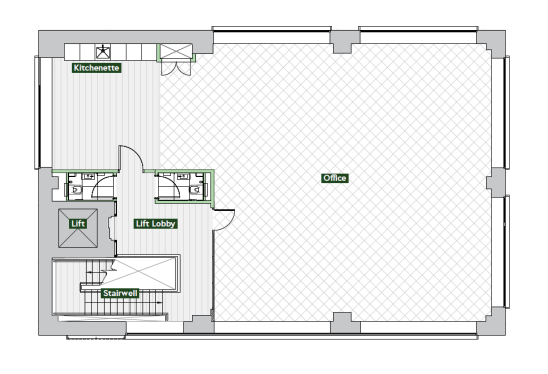
The property comprises a fully refurbished, detached office and warehouse unit set out over ground and first floor level with car parking allocation (14 spaces).

LOCATION

Located off Sevenoaks Way (A224) in Orpington, Crayfields Park is within the London Borough of Bromley, just 13 miles south east of central London. The town has
excellent transport links with a high concentration of commuter-based residents

FLOOR AREA

3960sq.ft (368sq.m)

TERMS

On a new full repairing lease on terms to be agreed.